FRPP Q61F-10S Supapă cu bilă cu priză DN15-100 GB Standard

Supapă cu bilă cu priză cu priză cu unire adevărată FRPP, cu dimensiune personalizată, cu dimensiune personalizată, manuală, din plastic durabil, pentru apă industrială
Număr de model: Q61F-10S
Culoare: Gri-Negru
Aplicație: generală
Material: plastic
Temperatura mediului: temperatură medie
Presiune: Presiune joasă
Alimentare: manuală
Media: Acid
Dimensiunea portului: DN15-100, 1/2"-4" (20mm-110mm)
Structura: Minge
Nume produs: supapă cu bilă Socket Union
Material corp: PPH
Conexiune: Unire
Ambalare: Cutie de carton standard
Standard de proiectare: Standard ISO
Material de etanșare: etanșare PTFE
Timp de livrare: 7 zile
MOQ: 1 bucată

Clasa de presiune: 1.0Mpa(10bar)

Caracteristici structurale ale produsului

1. Scaunul din PTFE al supapei cu bilă dublă poate fi reglat strâns.
2. Inelele O duble oferă protecție dublă împotriva scurgerilor.
3. Aspect rafinat, suprafață netedă, procesare fină, design cu flux complet.

Lista legată de temperatură a aplicației

Material Temperatura medie℃ Material Temperatura medie℃
PVC-C -20℃~ 95℃ PVC-U -5℃~ 45℃
FRPP -20℃~ 120℃ PPH -20℃~ 110℃
PVDF 40℃~ 150℃

Tabelul Materialului Piesei

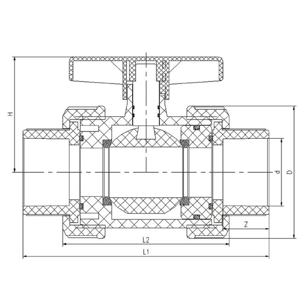
Desen de detaliu al ansamblului supapei cu bilă

Nu. Nume Material
1 Mâner Material aliaj
2 Inel de etanșare EPDM,FPM
3 Tulpina FRPP, PVDF, PVC-U, PVC-C, PPH
4 minge FRPP, PVDF, PVC-U, PVC-C, PPH
5 Inel de etanșare EPDM,FPM
6 Conectare la priză FRPP, PVDF, PVC-U, PVC-C, PPH
7 Piuliță de reținere FRPP, PVDF, PVC-U, PVC-C, PPH
8 Sigilați scaunul FRPP, PVDF, PVC-U, PVC-C, PPH
9 Minge sigilată PTFE
10 Corpul FRPP, PVDF, PVC-U, PVC-C, PPH
11 Inel de etanșare EPDM,FPM
12 Inel de etanșare EPDM,FPM

Lista de dimensiuni

DN D d L1 L2 Z H
15 48 20 105 80 17.5 42
20 60 25 127 92.5 23 52
25 72 32 144.5 107 26.5 61.5
32 82.5 40 171.5 114 36 80
40 100.5 50 183.5 128.5 34.5 87.5
50 112 63 201.5 146.5 38 95
65 133 75 232.5 159.5 44.5 113.5
80 154 90 284 190 53 130
100 172 110 340 230 65.5 153.5

Feedback despre mesaj
Despre noi
Kaixin Pipeline Technologies Co., Ltd.
Fondată în 1999, Kaixin Pipeline Technologies Co., Ltd. este o întreprindere de înaltă tehnologie care integrează cercetare și dezvoltare, producție, vânzări și servicii. Compania deține mai multe certificări prestigioase, inclusiv National High-Tech Enterprise, „Little Giant” Specialized and Sophisticated SME, National Single Product Champion (Cultivare), National Technology-based SME, Ningbo Specialized and Sophisticated SME, Ningbo Single Product Champion (Cultivation), Ningbo Polymer Pipe & Valve Technology R&D Center, District-Level Enterprise-Star Green Management, Ningbo Enterprise Management Four-Level Nivelul de maturitate al capacității 2.
Suntem specializați în dezvoltarea, producerea și furnizarea de produse nemetalice rezistente la coroziune pentru aplicații chimice, inclusiv supape din plastic, țevi, fitinguri pentru țevi și pompe rezistente la coroziune. Portofoliul nostru de produse cuprinde materiale precum PVC-C, PVC-U, PVDF, PPH și FRPP, cu o gamă cuprinzătoare de tipuri și specificații. În special, supapele noastre fluture pot atinge DN1000 în diametru, în timp ce țevile și fitingurile se extind până la DN800, abordând lacunele pieței și menținând avantajul nostru competitiv în industrie.
Ghidat de principiul „Tehnologie, ținând pasul cu vremurile”, Kaixin alocă anual aproape 10 milioane RMB pentru cercetare și dezvoltare. Asigurăm calitate superioară a produselor prin producție automatizată standardizată și aprovizionare strictă cu materii prime importate. Aliniați cu strategia noastră de dezvoltare internațională, monitorizăm în permanență tendințele pieței globale și valorificăm canalele digitale pentru a aduce clienților din întreaga lume produse de înaltă calitate „Made in China”.
Ningbo • Baza de cercetare și dezvoltare și producție Fenghua
Cu o investiție totală de 200 de milioane RMB, Kaixin Ultra-Pure Pipe Technology (Ningbo) Co., Ltd. a înființat un nou laborator de materiale în colaborare cu universități și institute de cercetare, a construit o bază de producție modernă și a instalat 8 linii de producție complet automatizate pentru materiale plastice modificate și 8 pentru materiale polimerice. Unitatea este dedicată cercetării și dezvoltării, producției și aplicării noilor materiale plastice modificate și polimeri. Kaixin se angajează, de asemenea, să atragă talente de top în diverse discipline, stimulând continuu inovarea produselor și dezvoltarea mărcii, cu scopul de a deveni un lider recunoscut la nivel global în cercetarea și dezvoltarea și fabricarea de supape, țevi și fitinguri din polimeri.
Certificat de Onoare
  • honor
  • honor
  • honor
  • honor
  • honor
  • honor
  • honor
  • honor
  • honor
Știri