Lista legată de temperatură a aplicației
Material Temperatura medie℃ Material Temperatura medie℃
PVC-C -20℃~ 95℃ PVC-U -5℃~ 45℃
FRPP -20℃~ 120℃ PPH -20℃~ 110℃
PVDF 40℃~ 150℃

Caracteristici structurale ale produsului

1. Rezistență chimică superioară: interval larg de temperatură de funcționare -20°C până la 95°C, conținutul de ioni grei din mediu îndeplinește standardele de apă ultrapură, iar proprietățile igienice îndeplinesc standardele naționale de sănătate.
2. Rezistență excelentă, duritate și rezistență la coroziune chimică.
3. Durabilitate: Rezistența excelentă la îmbătrânire și UV extins durata semnificativă de viață a altor sisteme de conduită.
4. Conductivitate termică scăzută: Aproximativ 1/200 cea a oțelului; ignifugare cu autostingere.
5. Ușor: Ușor, echivalent cu 1/5 din țeavă de oțel și 1/6 din țeavă de cupru.
6. Rezistență scăzută, debit mare: Suprafața țevii netedă și curată, minimizează frecarea și aderența la transportul fluidelor.
7. Instalare ușoară, cost redus: sunt disponibile conexiuni adezive și filetate, lipiciul fiind cel mai convenabil.

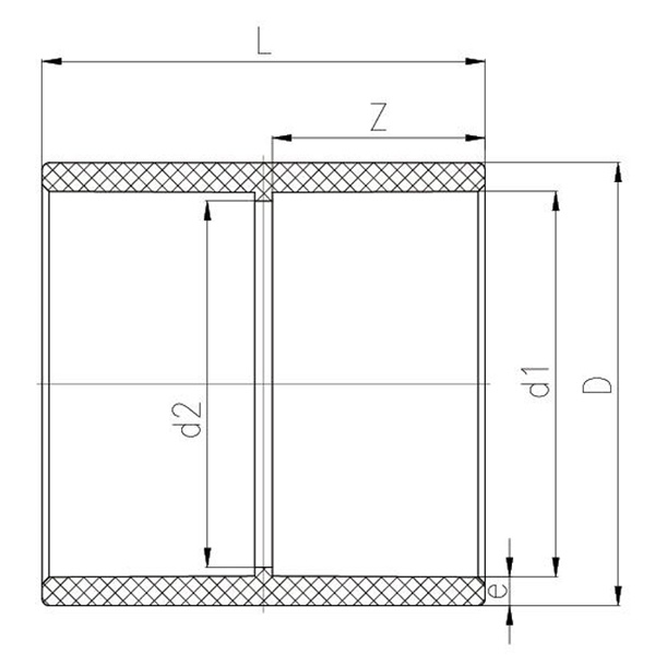
Lista de dimensiuni

DN D d1 d2 L Z e
15 27 20 18 35 16 3.5
20 32 25 23 40 18.5 3.5
25 40 32 30 47 22 4
32 50 40 38 55 26 5
40 61 50 47 65 31 5.5
50 75 63 60 80 37.5 t6
65 88 75 72 92 44 6.5
80 104 90 86 107 51 7
100 127 110 105 127 61 8.5
125 161 140 134 158 76 10.5
150 184 160 154 180 86 12
200 249 225 219 247 118.5 12
250 309 280 272 303 146 14.5
300 346 315 306 338 163. 5 15.5
350 392 355 349 380 184 18.5
400 440 400 393 430 206 20
450 494 450 430 477 231 22
500 548 500 480 527 256 24
600 692 630 600 657 321 31
700 758 710 690 737 361 22.5
800 843 800 780 830 406 20

Feedback despre mesaj
Despre noi
Kaixin Pipeline Technologies Co., Ltd.
Fondată în 1999, Kaixin Pipeline Technologies Co., Ltd. este o întreprindere de înaltă tehnologie care integrează cercetare și dezvoltare, producție, vânzări și servicii. Compania deține mai multe certificări prestigioase, inclusiv National High-Tech Enterprise, „Little Giant” Specialized and Sophisticated SME, National Single Product Champion (Cultivare), National Technology-based SME, Ningbo Specialized and Sophisticated SME, Ningbo Single Product Champion (Cultivation), Ningbo Polymer Pipe & Valve Technology R&D Center, District-Level Enterprise-Star Green Management, Ningbo Enterprise Management Four-Level Nivelul de maturitate al capacității 2.
Suntem specializați în dezvoltarea, producerea și furnizarea de produse nemetalice rezistente la coroziune pentru aplicații chimice, inclusiv supape din plastic, țevi, fitinguri pentru țevi și pompe rezistente la coroziune. Portofoliul nostru de produse cuprinde materiale precum PVC-C, PVC-U, PVDF, PPH și FRPP, cu o gamă cuprinzătoare de tipuri și specificații. În special, supapele noastre fluture pot atinge DN1000 în diametru, în timp ce țevile și fitingurile se extind până la DN800, abordând lacunele pieței și menținând avantajul nostru competitiv în industrie.
Ghidat de principiul „Tehnologie, ținând pasul cu vremurile”, Kaixin alocă anual aproape 10 milioane RMB pentru cercetare și dezvoltare. Asigurăm calitate superioară a produselor prin producție automatizată standardizată și aprovizionare strictă cu materii prime importate. Aliniați cu strategia noastră de dezvoltare internațională, monitorizăm în permanență tendințele pieței globale și valorificăm canalele digitale pentru a aduce clienților din întreaga lume produse de înaltă calitate „Made in China”.
Ningbo • Baza de cercetare și dezvoltare și producție Fenghua
Cu o investiție totală de 200 de milioane RMB, Kaixin Ultra-Pure Pipe Technology (Ningbo) Co., Ltd. a înființat un nou laborator de materiale în colaborare cu universități și institute de cercetare, a construit o bază de producție modernă și a instalat 8 linii de producție complet automatizate pentru materiale plastice modificate și 8 pentru materiale polimerice. Unitatea este dedicată cercetării și dezvoltării, producției și aplicării noilor materiale plastice modificate și polimeri. Kaixin se angajează, de asemenea, să atragă talente de top în diverse discipline, stimulând continuu inovarea produselor și dezvoltarea mărcii, cu scopul de a deveni un lider recunoscut la nivel global în cercetarea și dezvoltarea și fabricarea de supape, țevi și fitinguri din polimeri.
Certificat de Onoare
  • honor
  • honor
  • honor
  • honor
  • honor
  • honor
  • honor
  • honor
  • honor
Știri