Cuplaj PPH Hot Top Socket DN15-100 GB Standard

PPH galben pământesc  direct DN15-100, personalizate, de 4 inci, fitinguri pentru capac pentru țevi din plastic industrial pentru alimentarea cu produse chimice și cu apă
Locul de origine: China
Nume de marcă: KXPV
Tehnica: Forjată
Conexiune: priză
Material: PPH
Culoare: galben pământesc
Forma: Egal
Cod cap: pătrat
Dimensiune: DN15-DN100
Aplicație: Industrie
Ambalare: cutie de carton
Presiune de lucru: 1,6 MPA
Timp de livrare: 7 zile
MOQ: 1 bucată

Lista legată de temperatură a aplicației
Material Temperatura medie℃ Material Temperatura medie℃
PVC-C -20℃~ 95℃ PVC-U -5℃~ 45℃
FRPP -20℃~ 120℃ PPH -20℃~ 110℃
PVDF 40℃~ 150℃

Caracteristici structurale ale produsului

1. Cristalinitate ridicată
Fabricat dintr-un singur monomer de polipropilenă, lanțul molecular nu conține monomeri de etilenă; lanțul molecular este foarte regulat și oferă o durată de viață lungă.
2. Rezistență excelentă la coroziune
Poate rezista la coroziune de la acizi și baze cu concentrație ridicată într-un interval de pH de 1-14.
3. Rezistent la căldură, izolator și economisitor de energie
Poate funcționa la temperaturi de la -20°C până la 110°C. Conductivitatea sa termică scăzută oferă performanțe excelente de izolare.
4. Conexiune de încredere
Imbinarile de topire la cald sunt mai rezistente decat teava in sine, impiedicandu-le ruperea din cauza miscarii solului sau a sarcinilor.
5. Performanță excelentă în construcție
Acest produs este ușor, are un proces simplu de sudare, este ușor de instalat și oferă un cost global scăzut, potrivit pentru conductele de proces complexe. Sistemele de conducte PPH sunt utilizate pe scară largă în industrii precum galvanizarea, gravarea, produsele chimice, produsele farmaceutice, tratarea apelor uzate și ingineria mediului.

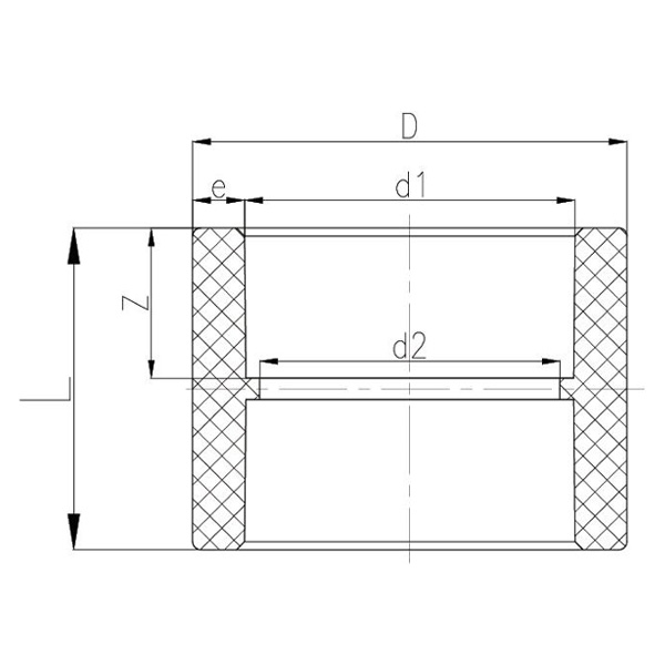
Cuplaj PPH Hot Top Socket

DN D d1 d2 L Z e
15 26 20 16 33.5 15 3
20 31 25 20 39.5 18 3
25 38.5 32 26 44 20.5 3.2
32 50 40 34 47.5 22 5
40 63.5 50 44 53.5 24.5 6.7
50 80 63 56 59 27.5 8.5
65 91.5 75 67 69 30.5 8.2
80 110 90 80 80 34.5 10
100 131.5 110 100 95 40.5 10.7
Feedback despre mesaj
Despre noi
Kaixin Pipeline Technologies Co., Ltd.
Fondată în 1999, Kaixin Pipeline Technologies Co., Ltd. este o întreprindere de înaltă tehnologie care integrează cercetare și dezvoltare, producție, vânzări și servicii. Compania deține mai multe certificări prestigioase, inclusiv National High-Tech Enterprise, „Little Giant” Specialized and Sophisticated SME, National Single Product Champion (Cultivare), National Technology-based SME, Ningbo Specialized and Sophisticated SME, Ningbo Single Product Champion (Cultivation), Ningbo Polymer Pipe & Valve Technology R&D Center, District-Level Enterprise-Star Green Management, Ningbo Enterprise Management Four-Level Nivelul de maturitate al capacității 2.
Suntem specializați în dezvoltarea, producerea și furnizarea de produse nemetalice rezistente la coroziune pentru aplicații chimice, inclusiv supape din plastic, țevi, fitinguri pentru țevi și pompe rezistente la coroziune. Portofoliul nostru de produse cuprinde materiale precum PVC-C, PVC-U, PVDF, PPH și FRPP, cu o gamă cuprinzătoare de tipuri și specificații. În special, supapele noastre fluture pot atinge DN1000 în diametru, în timp ce țevile și fitingurile se extind până la DN800, abordând lacunele pieței și menținând avantajul nostru competitiv în industrie.
Ghidat de principiul „Tehnologie, ținând pasul cu vremurile”, Kaixin alocă anual aproape 10 milioane RMB pentru cercetare și dezvoltare. Asigurăm calitate superioară a produselor prin producție automatizată standardizată și aprovizionare strictă cu materii prime importate. Aliniați cu strategia noastră de dezvoltare internațională, monitorizăm în permanență tendințele pieței globale și valorificăm canalele digitale pentru a aduce clienților din întreaga lume produse de înaltă calitate „Made in China”.
Ningbo • Baza de cercetare și dezvoltare și producție Fenghua
Cu o investiție totală de 200 de milioane RMB, Kaixin Ultra-Pure Pipe Technology (Ningbo) Co., Ltd. a înființat un nou laborator de materiale în colaborare cu universități și institute de cercetare, a construit o bază de producție modernă și a instalat 8 linii de producție complet automatizate pentru materiale plastice modificate și 8 pentru materiale polimerice. Unitatea este dedicată cercetării și dezvoltării, producției și aplicării noilor materiale plastice modificate și polimeri. Kaixin se angajează, de asemenea, să atragă talente de top în diverse discipline, stimulând continuu inovarea produselor și dezvoltarea mărcii, cu scopul de a deveni un lider recunoscut la nivel global în cercetarea și dezvoltarea și fabricarea de supape, țevi și fitinguri din polimeri.
Certificat de Onoare
  • honor
  • honor
  • honor
  • honor
  • honor
  • honor
  • honor
  • honor
  • honor
Știri